| 価格 | 2,799万円値下がり ![]() |
||||
|---|---|---|---|---|---|
| 所在地 | 東京都あきる野市草花
この地域周辺の物件を見る |
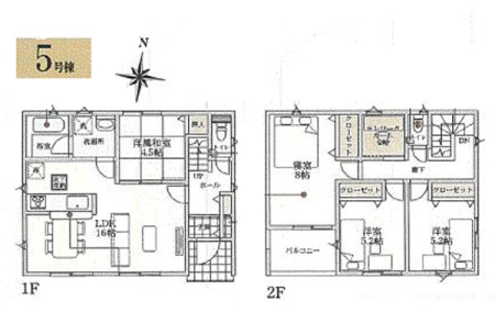
土地面積 | 121.01m² (36.61坪) | 建物面積 | 96.38u |
| 築年月 | 2025年12月築 | 間取り | 4LDK (-) | ||
| 交通 |
JR青梅線 福生 あきる野市民球場 バス12分 停歩9分
JR五日市線 秋川 あきる野市民球場 バス10分 停歩9分 |
||||
-
電話をかける(携帯・PHS可)
0120-008-442
「ホームページを見た」とお伝え下さい。
お問い合わせ番号をお伝えください
RHS-980927124
| 特徴 |
|
|---|---|
| セールスコメント |
| 採光面 | - | 構造/階数 | 木造/地上2階建 |
|---|---|---|---|
| 建ぺい率 | 40(%) | 容積率 | 80(%) |
| 駐車場 | 有 | 現況/引渡し | 空家/即時 |
| 土地権利 | 所有権 | 私道負担面積 | - |
| 接道状況 | 接道: 南 公道 道路幅: 4m | 用途地域 |
第一種低層住居専用地域
|
| セットバック | なし | 法令上の制限 | 宅地内に電柱及び支線が入る場合があります |
| 地目 | 宅地 | 地勢 | |
| 建築確認番号 | 第25UDIW建05245号 | 都市計画 | 市街化区域 |
| 取引態様 | 仲介 | ||
| 情報更新日 | 2026年05月13日 | 次回更新日 | 2026年05月27日 |
| 小学校区 | あきる野市立多西小学校 (東京都あきる野市) この学区の他の物件を見る |
中学校区 | 御堂中学校 (東京都あきる野市) この学区の他の物件を見る |
|---|
電話をかける(携帯・PHS可)
0120-008-442
「ホームページを見た」とお伝え下さい。
お問い合わせ番号をお伝えください
RHS-980927124
| 価格 | 万円 | ||
|---|---|---|---|
| 年利率 | % |
||
| ボーナス払い | 返済年数 | ||
| 頭金 | 直接入力する | 万円 | |

毎月のご返済額 |
ボーナス(×年2回) |
物件価格2,799万円 |
電話をかける(携帯・PHS可)
0120-008-442
「ホームページを見た」とお伝え下さい。
お問い合わせ番号をお伝えください
RHS-980927124
眺望良好な南道路です。 30坪以上のゆとりの敷地!
低層地区につき住環境良好です! 上り下りも楽々2階建て
バス停まで9分以内の好立地。