町田市金井ヶ丘3丁目 中古戸建 東京都町田市金井ヶ丘3丁目|5,690万円の中古一戸建て|中古住宅や中古物件情報|エムイーPLUS町田

TOPページ >
物件検索 >
中古一戸建て
>
町田市
>
小田急小田原線
>
町田市金井ヶ丘3丁目 中古戸建

中古一戸建て

町田市金井ヶ丘3丁目 中古戸建
お気に入り
価格 5,690万円値下がり ローンシミュレーション
所在地 東京都町田市金井ヶ丘3丁目
この地域周辺の物件を見る
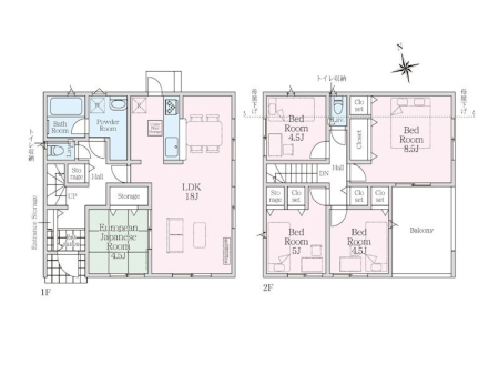
土地面積 187.6m² (56.75坪) 建物面積 137.71u
築年月 2015年3月築 間取り 4LDK (-)
交通
小田急小田原線 鶴川 徒歩20分
小田急小田原線 玉川学園前 徒歩23分

都市ガス=地球にやさしいエネルギーです。 毎日の通勤も苦にならない徒歩圏内
ガーデンパーティもできちゃう56.75坪 料理が楽しくなる!
低層住居専用地域!環境重視の方にオススメです。

ここがおすすめ

-


  • 現地外観写真 外観■まずは一度ご覧ください
  •  間取り
  • 現地外観写真 外観■暮らしを彩る充実した設備仕様が備わった住まい
  • 現地外観写真 外観■家族とのお出かけが楽しくなる環境です
  • 現地外観写真 外観■まずは一度ご覧ください
  •  外観■快適な駐車スペースで安心
  • その他 外観■天気の良い日はウッドデッキでのんびり日向ぼっこ
  •  区画図
  • 玄関 内装■ シンプルで美しく、快適な暮らしの入り口
  • トイレ 内装■毎日使う場所だからこそ、清潔感溢れる空間
  • 洗面台・洗面所 内装■明るい洗面所は毎朝の歯磨きも楽しくできちゃいそうです♪
  • 浴室 内装■落ち着いた色合いの壁面、ゆっくり寛げるバスルーム
  • キッチン 内装■シンプルで美しく心地よい時間を生むキッチン空間
  • キッチン 内装■おしゃれで実用的、心ときめくキッチンデザイン
  • キッチン 内装■シンプルで機能的、毎日使いやすいキッチン
  • リビング 内装■自然と会話が生まれる、心地よいひととき
  • リビング 内装■お気に入りの場所で、のんびりとした時間を
  • その他内観 内装■家族の笑顔があふれる、くつろぎの空間
  • リビング 内装■家族の時間を彩る、快適で癒される空間
  • その他内観 内装■清潔感あふれるお部屋で毎日を快適に過ごせます
  • その他内観 内装■静かな洋室で読書や趣味に集中できる場所
  • 子供部屋 内装■プライベート空間として静かで落ち着いた環境を提供してくれます
  • 寝室 内装■穏やかな空間で自分の時間を大切に
  • バルコニー 内装■ 心地よい風と光を感じる、くつろぎのバルコニー
  • 周辺環境 駅 1600m 小田急小田原線「鶴川」駅
  • 周辺環境 小学校 1550m 町田市立金井小学校
  • 周辺環境 中学校 1250m 町田市立金井中学校
  • 周辺環境 幼稚園・保育園 1500m 鶴川シオン幼稚園
  • 周辺環境 病院 2000m 医療法人社団恵友会 緑協和病院
  • 周辺環境 スーパー 4000m ロピア町田店
お問い合わせ、資料請求、見学のお申し込みはこちらから

電話をかける(携帯・PHS可)
0120-008-442
「ホームページを見た」とお伝え下さい。

お問い合わせ番号をお伝えください
RHS-980933244

内見予約
お問合せ

セールスポイント

特徴
  • フローリング
  • 床暖房
  • カウンターキッチン
  • バス・トイレ別
  • Wクローゼット
  • バルコニー
  • 都市ガス
  • カウンターキッチン
  • カースペース2台以上
  • プライスダウン
セールスコメント
 


物件概要

採光面 - 構造/階数 木造/地上2階建
建ぺい率 40(%) 容積率 80(%)
駐車場 現況/引渡し 空家/相談
土地権利 所有権 私道負担面積 -

接道状況 接道: 南西 公道 道路幅: 5m 用途地域
第一種低層住居専用地域
セットバック なし 法令上の制限 -
地目 宅地 地勢
建築確認番号 都市計画 市街化区域
取引態様 仲介
情報更新日 2026年04月30日 次回更新日 2026年05月14日
※各種情報と差異がある場合は現況優先となります

学区情報

小学校区
()
中学校区
()
※物件情報の学区情報について
当サイト物件情報に記載されております通学区域(学区)情報は、国土数値情報ダウンロードサービスが提供する小学校区データ【2016年度】及び中学校区データ【2016年度】を元に加工したものですので、記載情報が現在の学区域と異なる場合がございます。
国土数値情報ダウンロードサービスのWEBサイト上で記述通り、データは必ずしも正確とは言えません。また、通学区域(学区)は毎年見直しの対象となりますので、そちらを踏まえ学区情報は参考としてご活用下さい。
お問い合わせ、資料請求、見学のお申し込みはこちらから

電話をかける(携帯・PHS可)
0120-008-442
「ホームページを見た」とお伝え下さい。

お問い合わせ番号をお伝えください
RHS-980933244

内見予約
お問合せ

この物件でローンシミュレーションする

価格 万円
年利率
ボーナス払い 返済年数
頭金 直接入力する 万円

毎月のご返済額

ボーナス(×年2回)

物件価格

5,690万円
※返済金額はあくまでも目安です。

電話をかける(携帯・PHS可)
0120-008-442
「ホームページを見た」とお伝え下さい。

お問い合わせ番号をお伝えください
RHS-980933244

内見予約
お問合せ

お問い合わせ

お問い合わせ内容
お問合せ内容必須
【備考欄】
詳細な見学ご希望時間、ご質問、ご希望条件などがございましたらお聞かせ下さい。
(2000文字以内)
お客様情報
お名前必須
連絡先必須 メールアドレス

※ご記入いただいたメールアドレス宛てに、お問合せ内容の確認メールをお送りいたします。
※Yahoo!メールなどのフリーメールをご利用の場合、迷惑メールフォルダに入る場合があります。
 迷惑メールのフォルダ・設定等をご確認下さい。
電話番号
FAX(任意)
※ご入力いただいたお客さまの個人情報は、「個人情報の取扱いについて」に基づき適正に取り扱います。必ずお読みになり、同意の上お問い合わせください。

お気軽にお問い合わせください

0120-008-442
物件番号 RHS-980933244
※「ホームページを見た」
とお伝え下さい。