茅ヶ崎市今宿3期 新築戸建 全2棟 神奈川県茅ヶ崎市今宿 |3,999万円の新築一戸建て|分譲住宅や新築物件|エムイーPLUS町田

TOPページ >
物件検索 >
新築一戸建て
>
茅ヶ崎市
>
JR東海道本線
>
茅ヶ崎市今宿3期 新築戸建 全2棟

新築一戸建て

茅ヶ崎市今宿3期 新築戸建 全2棟
お気に入り
価格 3,999万円値下がり ローンシミュレーション
所在地 神奈川県茅ヶ崎市今宿
この地域周辺の物件を見る
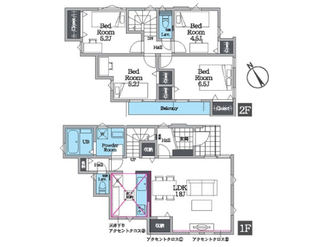
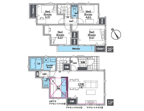
土地面積 101.63m² (30.74坪) 建物面積 95.22u
築年月 2026年2月築 間取り 4LDK (-)
交通
JR東海道本線 東海道本線平塚駅 車分
JR東海道本線 平塚

都市ガス=天然ガスなので安心です。 30坪以上のゆとりの敷地!
上り下りも楽々2階建て 憧れの新築一戸建て!
医療施設充実の安心の住環境

ここがおすすめ

-


  • 現地外観写真 外観■新しい暮らしが始まる場所で、家族の絆を深める
  •  間取り
  • 現地外観写真 外観■まずは一度ご覧ください
  • 現地外観写真 外観■優雅なラインが、毎日を引き立てます
  • 現地外観写真 外観■新しい暮らしが始まる場所で、家族の絆を深める
  •  外観■自宅にある駐車スペースなので安心ですね
  • 玄関 外観■ 家族とゲストをやさしく迎える、心温まる玄関
  •  区画図
  • 玄関 内装■ 毎日を気持ちよく迎える、明るく温もりのある玄関
  • トイレ 内装■使いやすさと清潔感にこだわった空間
  • 洗面台・洗面所 内装■家族みんなが使いやすい配置です
  • 浴室 内装■ゆっくり、ゆったり寛げるバスルーム
  • キッチン 内装■料理がもっと楽しくなる、快適なキッチン空間
  • キッチン 内装■家族とつながる、コミュニケーションの場
  • キッチン 内装■美味しい時間が生まれる、笑顔あふれるキッチン
  • リビング 内装■家族の時間を彩る、快適で癒される空間
  • リビング 内装■大切な人と過ごす、あたたかいひととき
  • その他内観 内装■温もりを感じる、居心地のいいリビング
  • リビング 内装■心落ち着く場所、ゆったり過ごせるリビング
  • その他内観 内装■心地よい雰囲気が漂う落ち着いた空間
  • 子供部屋 内装■家具やレイアウトを自由に配置できるため使い勝手が良く快適に過ごせます
  • 寝室 内装■家具をうまく配置すれば広々とした空間を使い動きやすく、リラックスした時間が過ごせます
  • その他内観 内装■落ち着いた雰囲気のお部屋で心が安らぐ空間
  • バルコニー 内装■ 自然を身近に感じる、開放的なバルコニー
  • その他内観 内装■自分だけのスペース どんなお部屋にするかとっても楽しみですね
  • その他内観 内装■静かな洋室で読書や趣味に集中できる場所
  • その他内観 設備■環境に優しくエコなEV車ライフをサポート
  • その他内観 設備■手洗いや顔を洗う時も快適に使える便利なシャワー
  • その他内観 設備■冬でも温かく、快適乾燥機能で湿気対策もバッチリ
  • その他内観 設備■手元で簡単に止水できるため、水の無駄遣いを減らすことができます。
お問い合わせ、資料請求、見学のお申し込みはこちらから

電話をかける(携帯・PHS可)
0120-008-442
「ホームページを見た」とお伝え下さい。

お問い合わせ番号をお伝えください
RHS-980936767

内見予約
お問合せ

セールスポイント

特徴
  • フローリング
  • システムキッチン
  • シャンプードレッサー
  • シャワートイレ
  • 浴室乾燥機
  • 床下収納
  • バルコニー
  • TVドアホン
  • 都市ガス
  • プライスダウン
セールスコメント
 


物件概要

採光面 - 構造/階数 木造/地上2階建
建ぺい率 60(%) 容積率 200(%)
駐車場 現況/引渡し 空家/即時
土地権利 所有権 私道負担面積 -

接道状況 接道: 北東 公道 道路幅: 6.2m 用途地域
第一種中高層住居専用地域
セットバック なし 法令上の制限 下水道処理区域
地目 宅地 地勢
建築確認番号 第25UDI1W建07328号 都市計画 市街化区域
取引態様 仲介
情報更新日 2026年04月23日 次回更新日 2026年05月07日
※各種情報と差異がある場合は現況優先となります

学区情報

小学校区
()
中学校区
()
※物件情報の学区情報について
当サイト物件情報に記載されております通学区域(学区)情報は、国土数値情報ダウンロードサービスが提供する小学校区データ【2016年度】及び中学校区データ【2016年度】を元に加工したものですので、記載情報が現在の学区域と異なる場合がございます。
国土数値情報ダウンロードサービスのWEBサイト上で記述通り、データは必ずしも正確とは言えません。また、通学区域(学区)は毎年見直しの対象となりますので、そちらを踏まえ学区情報は参考としてご活用下さい。
お問い合わせ、資料請求、見学のお申し込みはこちらから

電話をかける(携帯・PHS可)
0120-008-442
「ホームページを見た」とお伝え下さい。

お問い合わせ番号をお伝えください
RHS-980936767

内見予約
お問合せ

この物件でローンシミュレーションする

価格 万円
年利率
ボーナス払い 返済年数
頭金 直接入力する 万円

毎月のご返済額

ボーナス(×年2回)

物件価格

3,999万円
※返済金額はあくまでも目安です。

こちらの物件は複数区画の分譲地・他にも販売中のマンションがあります。

茅ヶ崎市今宿
3999万円〜4299万円
  • こちらの物件を見たお客様はこんな物件もチェックしています。
  • お気に入り物件

電話をかける(携帯・PHS可)
0120-008-442
「ホームページを見た」とお伝え下さい。

お問い合わせ番号をお伝えください
RHS-980936767

内見予約
お問合せ

お問い合わせ

お問い合わせ内容
お問合せ内容必須
【備考欄】
詳細な見学ご希望時間、ご質問、ご希望条件などがございましたらお聞かせ下さい。
(2000文字以内)
お客様情報
お名前必須
連絡先必須 メールアドレス

※ご記入いただいたメールアドレス宛てに、お問合せ内容の確認メールをお送りいたします。
※Yahoo!メールなどのフリーメールをご利用の場合、迷惑メールフォルダに入る場合があります。
 迷惑メールのフォルダ・設定等をご確認下さい。
電話番号
FAX(任意)
※ご入力いただいたお客さまの個人情報は、「個人情報の取扱いについて」に基づき適正に取り扱います。必ずお読みになり、同意の上お問い合わせください。

お気軽にお問い合わせください

0120-008-442
物件番号 RHS-980936767
※「ホームページを見た」
とお伝え下さい。