| 価格 | 3,780万円値下がり ![]() |
||||
|---|---|---|---|---|---|
| 所在地 | 神奈川県綾瀬市寺尾本町3丁目
この地域周辺の物件を見る |
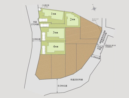
土地面積 | 104.1m² (31.49坪) | 建物面積 | 96.46u |
| 築年月 | 2025年12月築 | 間取り | 4LDK (-) | ||
| 交通 |
相鉄本線 さがみ野 寺尾 バス9分 停歩5分
相鉄本線 かしわ台 徒歩25分 |
||||
-
電話をかける(携帯・PHS可)
0120-008-442
「ホームページを見た」とお伝え下さい。
お問い合わせ番号をお伝えください
RHS-980936845
| 特徴 |
|
|---|---|
| セールスコメント |
| 採光面 | - | 構造/階数 | 木造/地上2階建 |
|---|---|---|---|
| 建ぺい率 | 60(%) | 容積率 | 200(%) |
| 駐車場 | 有 | 現況/引渡し | 空家/即時 |
| 土地権利 | 所有権 | 私道負担面積 | - |
| 接道状況 | 接道: 北西 公道 道路幅: 5m | 用途地域 |
第一種中高層住居専用地域
|
| セットバック | なし | 法令上の制限 | - |
| 地目 | 宅地 | 地勢 | |
| 建築確認番号 | 第KS125-3820-50365号 | 都市計画 | 市街化区域 |
| 取引態様 | 仲介 | ||
| 情報更新日 | 2026年05月13日 | 次回更新日 | 2026年05月27日 |
| 小学校区 | 綾瀬市立綾北小学校 (神奈川県綾瀬市) この学区の他の物件を見る |
中学校区 | 綾北中学校 (神奈川県綾瀬市) この学区の他の物件を見る |
|---|
電話をかける(携帯・PHS可)
0120-008-442
「ホームページを見た」とお伝え下さい。
お問い合わせ番号をお伝えください
RHS-980936845
| 価格 | 万円 | ||
|---|---|---|---|
| 年利率 | % |
||
| ボーナス払い | 返済年数 | ||
| 頭金 | 直接入力する | 万円 | |

毎月のご返済額 |
ボーナス(×年2回) |
物件価格3,780万円 |
![]() |
![]() |
綾瀬市寺尾本町3丁目
3480万円〜3780万円 |
電話をかける(携帯・PHS可)
0120-008-442
「ホームページを見た」とお伝え下さい。
お問い合わせ番号をお伝えください
RHS-980936845
ポイントとなる条件の都市ガスです。 一番人気。敷地30坪以上!
休日をゆっくり過ごせる2階建て 疲れた仕事帰りも楽々バス移動
最新の住宅、新築一戸建て