調布市菊野台3丁目第3 新築戸建 全1棟 東京都調布市菊野台3丁目|6,590万円の新築一戸建て|分譲住宅や新築物件|エムイーPLUS町田

TOPページ >
物件検索 >
新築一戸建て
>
調布市
>
京王線
>
調布市菊野台3丁目第3 新築戸建 全1棟

新築一戸建て

調布市菊野台3丁目第3 新築戸建 全1棟
お気に入り
価格 6,590万円 ローンシミュレーション
所在地 東京都調布市菊野台3丁目
この地域周辺の物件を見る
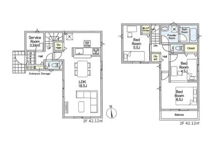
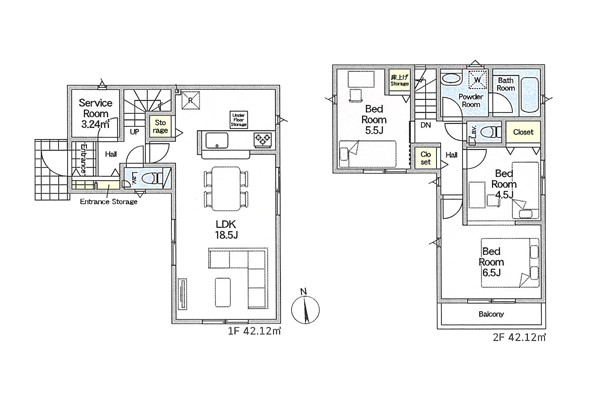
土地面積 109.81m² (33.22坪) 建物面積 84.24u
築年月 2026年6月築 間取り 3SLDK (-)
交通
京王線 柴崎 徒歩9分

夜遅くても安心駅近物件!! ポイントとなる条件の都市ガスです。
一番人気。敷地30坪以上! 孤独にならないカウンターキッチン!!
夜も静かでゆったり家族だんらん

ここがおすすめ

-


  • 現地外観写真 外観■暮らしを豊かにする充実した仕様設備で快適に
  •  間取り
  • 現地外観写真 外観■新しい暮らしが始まる場所で、家族の絆を深める
  • 現地外観写真 外観■新しい住まい、街の新しい風景
  • 現地外観写真 外観■暮らしを豊かにする充実した仕様設備で快適に
  •  区画図
  • 周辺環境 駅 720m 京王線「柴崎」駅
  • 周辺環境 小学校 160m 調布市立調和小学校
  • 周辺環境 中学校 1440m 調布市立第六中学校
  • 周辺環境 幼稚園・保育園 300m つつじがおか幼稚園
  • 周辺環境 病院 900m 国領めいようクリニック
  • 周辺環境 スーパー 400m ビッグ・エー 調布菊野台店
お問い合わせ、資料請求、見学のお申し込みはこちらから

電話をかける(携帯・PHS可)
0120-008-442
「ホームページを見た」とお伝え下さい。

お問い合わせ番号をお伝えください
RHS-980941202

内見予約
お問合せ

セールスポイント

特徴
  • フローリング
  • システムキッチン
  • カウンターキッチン
  • シャンプードレッサー
  • バス・トイレ別
  • シャワートイレ
  • 室内洗濯機置場
  • 床下収納
  • バルコニー
  • TVドアホン
  • 都市ガス
  • カウンターキッチン
セールスコメント
 


物件概要

採光面 - 構造/階数 木造/地上2階建
建ぺい率 40(%) 容積率 80(%)
駐車場 現況/引渡し -/2026年6月下旬
土地権利 所有権 私道負担面積 -

接道状況 接道: 南西 公道 道路幅: 4m 用途地域
第一種低層住居専用地域
セットバック なし 法令上の制限 22条指定区域 第一種高度地区 高さ10m 1台駐車可※車種による 法43条2項2号4m(持分なし)
地目 宅地 地勢
建築確認番号 第R07SHC113073号 都市計画 市街化区域
取引態様 仲介
情報更新日 2026年04月25日 次回更新日 2026年05月09日
※各種情報と差異がある場合は現況優先となります

学区情報

小学校区
()
中学校区
()
※物件情報の学区情報について
当サイト物件情報に記載されております通学区域(学区)情報は、国土数値情報ダウンロードサービスが提供する小学校区データ【2016年度】及び中学校区データ【2016年度】を元に加工したものですので、記載情報が現在の学区域と異なる場合がございます。
国土数値情報ダウンロードサービスのWEBサイト上で記述通り、データは必ずしも正確とは言えません。また、通学区域(学区)は毎年見直しの対象となりますので、そちらを踏まえ学区情報は参考としてご活用下さい。
お問い合わせ、資料請求、見学のお申し込みはこちらから

電話をかける(携帯・PHS可)
0120-008-442
「ホームページを見た」とお伝え下さい。

お問い合わせ番号をお伝えください
RHS-980941202

内見予約
お問合せ

この物件でローンシミュレーションする

価格 万円
年利率
ボーナス払い 返済年数
頭金 直接入力する 万円

毎月のご返済額

ボーナス(×年2回)

物件価格

6,590万円
※返済金額はあくまでも目安です。

電話をかける(携帯・PHS可)
0120-008-442
「ホームページを見た」とお伝え下さい。

お問い合わせ番号をお伝えください
RHS-980941202

内見予約
お問合せ

お問い合わせ

お問い合わせ内容
お問合せ内容必須
【備考欄】
詳細な見学ご希望時間、ご質問、ご希望条件などがございましたらお聞かせ下さい。
(2000文字以内)
お客様情報
お名前必須
連絡先必須 メールアドレス

※ご記入いただいたメールアドレス宛てに、お問合せ内容の確認メールをお送りいたします。
※Yahoo!メールなどのフリーメールをご利用の場合、迷惑メールフォルダに入る場合があります。
 迷惑メールのフォルダ・設定等をご確認下さい。
電話番号
FAX(任意)
※ご入力いただいたお客さまの個人情報は、「個人情報の取扱いについて」に基づき適正に取り扱います。必ずお読みになり、同意の上お問い合わせください。

お気軽にお問い合わせください

0120-008-442
物件番号 RHS-980941202
※「ホームページを見た」
とお伝え下さい。