八王子市元横山町3丁目3期 新築戸建 全1棟 東京都八王子市元横山町3丁目|5,999万円の新築一戸建て|分譲住宅や新築物件|エムイーPLUS町田

TOPページ >
物件検索 >
新築一戸建て
>
八王子市
>
JR中央線
>
八王子市元横山町3丁目3期 新築戸建 全1棟

新築一戸建て

八王子市元横山町3丁目3期 新築戸建 全1棟
お気に入り
価格 5,999万円 ローンシミュレーション
所在地 東京都八王子市元横山町3丁目
この地域周辺の物件を見る
土地面積 117.32m² (35.49坪) 建物面積 108.86u
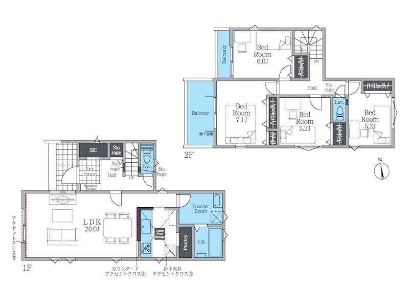
築年月 2026年7月築 間取り 4LDK (-)
交通
JR中央線 八王子 徒歩15分
JR横浜線 八王子 徒歩15分

都市ガス=価格もお得なエネルギーです。 好立地、魅力の15分圏内
人気の敷地30坪以上! 家族と会話をしながら家事の出来るキッチン!!
夢のマイホーム2階建て

ここがおすすめ

-


  • 現地外観写真 外観■暮らしを彩る充実した設備仕様が備わった住まい
  •  間取り
  • 現地外観写真 外観■家族みんなが笑顔で過ごせる、安心感のある住まい
  • 現地外観写真 外観■新しい時代の息吹を感じる、心地よい環境
  • 現地外観写真 外観■まずは一度ご覧ください
  •  区画図
  • 周辺環境 駅 1200m JR中央線「八王子」駅
  • 周辺環境 小学校 800m 八王子市立第一小学校
  • 周辺環境 中学校 1200m 八王子市立第五中学校
  • 周辺環境 幼稚園・保育園 180m 静教保育園
  • 周辺環境 病院 900m 右田病院
  • 周辺環境 スーパー 900m エコス大横店
お問い合わせ、資料請求、見学のお申し込みはこちらから

電話をかける(携帯・PHS可)
0120-008-442
「ホームページを見た」とお伝え下さい。

お問い合わせ番号をお伝えください
RHS-980941980

内見予約
お問合せ

セールスポイント

特徴
  • フローリング
  • システムキッチン
  • カウンターキッチン
  • シャンプードレッサー
  • シャワートイレ
  • 浴室乾燥機
  • 床下収納
  • バルコニー
  • TVドアホン
  • 都市ガス
  • カウンターキッチン
  • カースペース2台以上
セールスコメント
 


物件概要

採光面 - 構造/階数 木造/地上2階建
建ぺい率 60(%) 容積率 200(%)
駐車場 現況/引渡し -/2026年7月下旬
土地権利 所有権 私道負担面積 -

接道状況 接道: 西 公道 道路幅: 5.2m 用途地域
準工業地域
セットバック なし 法令上の制限 準防火地域、第二種高度地区、下水道処理区域、宅地造成等工事規制区域
地目 宅地 地勢
建築確認番号 第25UDI1W建11682号 都市計画 市街化区域
取引態様 仲介
情報更新日 2026年05月13日 次回更新日 2026年05月27日
※各種情報と差異がある場合は現況優先となります

学区情報

小学校区 八王子市立第一小学校
(東京都八王子市)
この学区の他の物件を見る
中学校区 第五中学校
(東京都八王子市)
この学区の他の物件を見る
※物件情報の学区情報について
当サイト物件情報に記載されております通学区域(学区)情報は、国土数値情報ダウンロードサービスが提供する小学校区データ【2016年度】及び中学校区データ【2016年度】を元に加工したものですので、記載情報が現在の学区域と異なる場合がございます。
国土数値情報ダウンロードサービスのWEBサイト上で記述通り、データは必ずしも正確とは言えません。また、通学区域(学区)は毎年見直しの対象となりますので、そちらを踏まえ学区情報は参考としてご活用下さい。
お問い合わせ、資料請求、見学のお申し込みはこちらから

電話をかける(携帯・PHS可)
0120-008-442
「ホームページを見た」とお伝え下さい。

お問い合わせ番号をお伝えください
RHS-980941980

内見予約
お問合せ

この物件でローンシミュレーションする

価格 万円
年利率
ボーナス払い 返済年数
頭金 直接入力する 万円

毎月のご返済額

ボーナス(×年2回)

物件価格

5,999万円
※返済金額はあくまでも目安です。

電話をかける(携帯・PHS可)
0120-008-442
「ホームページを見た」とお伝え下さい。

お問い合わせ番号をお伝えください
RHS-980941980

内見予約
お問合せ

お問い合わせ

お問い合わせ内容
お問合せ内容必須
【備考欄】
詳細な見学ご希望時間、ご質問、ご希望条件などがございましたらお聞かせ下さい。
(2000文字以内)
お客様情報
お名前必須
連絡先必須 メールアドレス

※ご記入いただいたメールアドレス宛てに、お問合せ内容の確認メールをお送りいたします。
※Yahoo!メールなどのフリーメールをご利用の場合、迷惑メールフォルダに入る場合があります。
 迷惑メールのフォルダ・設定等をご確認下さい。
電話番号
FAX(任意)
※ご入力いただいたお客さまの個人情報は、「個人情報の取扱いについて」に基づき適正に取り扱います。必ずお読みになり、同意の上お問い合わせください。

お気軽にお問い合わせください

0120-008-442
物件番号 RHS-980941980
※「ホームページを見た」
とお伝え下さい。