| 価格 | 9,880万円 ![]() |
||||
|---|---|---|---|---|---|
| 所在地 | 神奈川県鎌倉市腰越1丁目
この地域周辺の物件を見る |
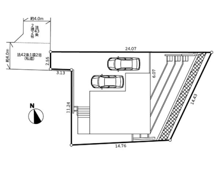
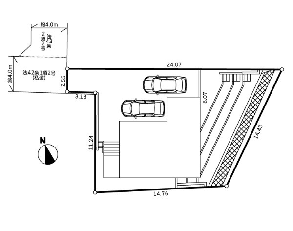
土地面積 | 255.39m² (77.26坪) | 建物面積 | 134.41u |
| 築年月 | 2026年10月築 | 間取り | 5LDK (-) | ||
| 交通 |
江ノ島電鉄 鎌倉高校前 徒歩4分
江ノ島電鉄 腰越 徒歩12分 |
||||
-
電話をかける(携帯・PHS可)
0120-008-442
「ホームページを見た」とお伝え下さい。
お問い合わせ番号をお伝えください
RHS-980945301
| 特徴 |
|
|---|---|
| セールスコメント |
| 採光面 | - | 構造/階数 | 木造/地上2階建 |
|---|---|---|---|
| 建ぺい率 | 40(%) | 容積率 | 80(%) |
| 駐車場 | 有 | 現況/引渡し | -/2026年10月下旬 |
| 土地権利 | 所有権 | 私道負担面積 | - |
| 接道状況 | 接道: 北西 私道 道路幅: 4m | 用途地域 |
第一種低層住居専用地域
|
| セットバック | なし | 法令上の制限 | 法22条区域 高さの制限10m 宅地造成及び特定盛土等規制法 南東側間知積は旧宅造法による間知積 住民協定(浜上山自治会)有 掘削・承諾書有 |
| 地目 | 宅地 | 地勢 | |
| 建築確認番号 | 第25UDI1K建02368号 | 都市計画 | 市街化区域 |
| 取引態様 | 仲介 | ||
| 情報更新日 | 2026年05月14日 | 次回更新日 | 2026年05月28日 |
| 小学校区 | () |
中学校区 | () |
|---|
電話をかける(携帯・PHS可)
0120-008-442
「ホームページを見た」とお伝え下さい。
お問い合わせ番号をお伝えください
RHS-980945301
| 価格 | 万円 | ||
|---|---|---|---|
| 年利率 | % |
||
| ボーナス払い | 返済年数 | ||
| 頭金 | 直接入力する | 万円 | |

毎月のご返済額 |
ボーナス(×年2回) |
物件価格9,880万円 |
電話をかける(携帯・PHS可)
0120-008-442
「ホームページを見た」とお伝え下さい。
お問い合わせ番号をお伝えください
RHS-980945301
なかなか出ない駅徒歩4分 都市ガス=地球にやさしいエネルギーです。
毎日の通勤も苦にならない徒歩圏内 ガーデンパーティもできちゃう77.26坪
低層住居専用地域!環境重視の方にオススメです。