| 価格 | 7,049万円 ![]() |
||||
|---|---|---|---|---|---|
| 所在地 | 神奈川県相模原市南区東林間8丁目
この地域周辺の物件を見る |
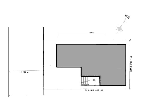
土地面積 | 91.63m² (27.72坪) | 建物面積 | 91.39u |
| 築年月 | 2026年6月築 | 間取り | 2SLDK (-) | ||
| 交通 |
小田急江ノ島線 中央林間 徒歩10分
東急田園都市線 中央林間 徒歩10分 |
||||
-
電話をかける(携帯・PHS可)
0120-008-442
「ホームページを見た」とお伝え下さい。
お問い合わせ番号をお伝えください
RHS-980945604
| 特徴 |
|
|---|---|
| セールスコメント |
| 採光面 | - | 構造/階数 | 木造/地上2階建 |
|---|---|---|---|
| 建ぺい率 | 50(%) | 容積率 | 100(%) |
| 駐車場 | 有 | 現況/引渡し | -/2026年6月下旬 |
| 土地権利 | 所有権 | 私道負担面積 | - |
| 接道状況 | 接道: 南西 公道 道路幅: 5m | 用途地域 |
第一種低層住居専用地域
|
| セットバック | なし | 法令上の制限 | 相模原市都市計画区域 準防火地域 南相模原第5地区 高さ10メートル以下 日影規制3h-2h/1.5メートル 自然系許可地域 宅地造成等工事規制区域 |
| 地目 | 宅地 | 地勢 | |
| 建築確認番号 | 第25UDI1W建13543号 | 都市計画 | 市街化区域 |
| 取引態様 | 仲介 | ||
| 情報更新日 | 2026年05月14日 | 次回更新日 | 2026年05月28日 |
| 小学校区 | 相模原市立上鶴間小学校 (神奈川県相模原市南区) この学区の他の物件を見る |
中学校区 | 東林中学校 (神奈川県相模原市南区) この学区の他の物件を見る |
|---|
電話をかける(携帯・PHS可)
0120-008-442
「ホームページを見た」とお伝え下さい。
お問い合わせ番号をお伝えください
RHS-980945604
| 価格 | 万円 | ||
|---|---|---|---|
| 年利率 | % |
||
| ボーナス払い | 返済年数 | ||
| 頭金 | 直接入力する | 万円 | |

毎月のご返済額 |
ボーナス(×年2回) |
物件価格7,049万円 |
電話をかける(携帯・PHS可)
0120-008-442
「ホームページを見た」とお伝え下さい。
お問い合わせ番号をお伝えください
RHS-980945604
駅まで10分!駅まで歩いてすぐ! 都市ガス=天然ガスなので安心です。
低層地区につき住環境良好です! 上り下りも楽々2階建て
憧れの新築一戸建て!