八王子市弐分方町11期 新築戸建 全7棟 東京都八王子市弐分方町 |3,090万円の新築一戸建て|分譲住宅や新築物件|エムイーPLUS町田

TOPページ >
物件検索 >
新築一戸建て
>
八王子市
>
JR中央線
>
八王子市弐分方町11期 新築戸建 全7棟

新築一戸建て

八王子市弐分方町11期 新築戸建 全7棟
お気に入り
価格 3,090万円 ローンシミュレーション
所在地 東京都八王子市弐分方町
この地域周辺の物件を見る
土地面積 125.22m² (37.88坪) 建物面積 96.05u
築年月 2026年9月築 間取り 4LDK (-)
交通
JR中央線 西八王子 中央線高尾駅 車分
JR中央線 高尾

供給安定性はピカイチな都市ガスです。 将来性も抜群、南道路です。
理想の敷地30坪以上! 主婦の憧れカウンターキッチン!!
小さなお子様にも安心な住環境

ここがおすすめ

-


  • 現地外観写真 B号棟  ■暮らしを彩る充実した設備仕様が備わった住まい
  •  B号棟
  • 現地外観写真 B号棟  ■家族みんなが笑顔で過ごせる、安心感のある住まい
  • 現地外観写真 外観■新しい時代の息吹を感じる、心地よい環境
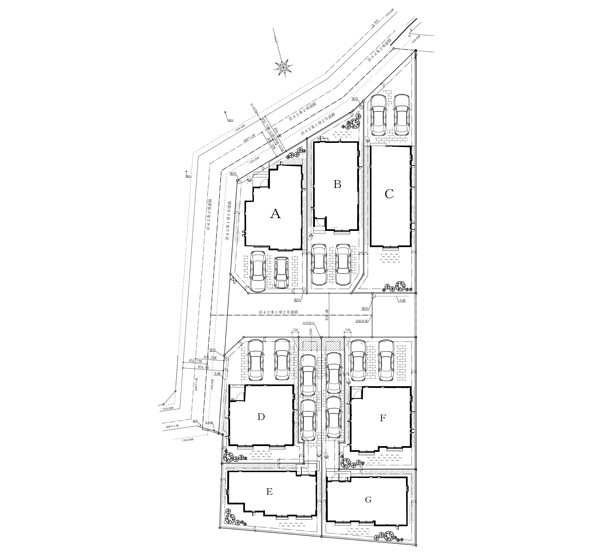
  •  区画図
  • 周辺環境 駅 3400m JR中央線「西八王子」駅
  • 周辺環境 小学校 1000m 八王子市立元八王子小学校
  • 周辺環境 中学校 1000m 八王子市立元八王子中学校
  • 周辺環境 幼稚園・保育園 900m さつき保育園
  • 周辺環境 病院 1900m 東京天使病院
  • 周辺環境 スーパー 700m オザム大楽寺店
お問い合わせ、資料請求、見学のお申し込みはこちらから

電話をかける(携帯・PHS可)
0120-008-442
「ホームページを見た」とお伝え下さい。

お問い合わせ番号をお伝えください
RHS-980945700

内見予約
お問合せ

セールスポイント

特徴
  • フローリング
  • システムキッチン
  • カウンターキッチン
  • バス・トイレ別
  • 室内洗濯機置場
  • 床下収納
  • バルコニー
  • 都市ガス
  • カウンターキッチン
  • カースペース2台以上
セールスコメント
 


物件概要

採光面 - 構造/階数 木造/地上2階建
建ぺい率 40(%) 容積率 80(%)
駐車場 現況/引渡し -/2026年9月下旬
土地権利 所有権 私道負担面積 -

接道状況 接道: 北 公道 道路幅: 4.6m
接道: 南 私道 道路幅: 5m
用途地域
第一種低層住居専用地域
セットバック なし 法令上の制限 第一種高度地区 元八王子中央地区地区計画 敷地面積120平米 壁面後退0.5m
地目 宅地 地勢
建築確認番号 第HPA-26-01465-1号 都市計画 市街化区域
取引態様 仲介
情報更新日 2026年05月22日 次回更新日 2026年06月05日
※各種情報と差異がある場合は現況優先となります

学区情報

小学校区 八王子市立上壱分方小学校
(東京都八王子市)
この学区の他の物件を見る
中学校区 元八王子中学校
(東京都八王子市)
この学区の他の物件を見る
※物件情報の学区情報について
当サイト物件情報に記載されております通学区域(学区)情報は、国土数値情報ダウンロードサービスが提供する小学校区データ【2016年度】及び中学校区データ【2016年度】を元に加工したものですので、記載情報が現在の学区域と異なる場合がございます。
国土数値情報ダウンロードサービスのWEBサイト上で記述通り、データは必ずしも正確とは言えません。また、通学区域(学区)は毎年見直しの対象となりますので、そちらを踏まえ学区情報は参考としてご活用下さい。
お問い合わせ、資料請求、見学のお申し込みはこちらから

電話をかける(携帯・PHS可)
0120-008-442
「ホームページを見た」とお伝え下さい。

お問い合わせ番号をお伝えください
RHS-980945700

内見予約
お問合せ

この物件でローンシミュレーションする

価格 万円
年利率
ボーナス払い 返済年数
頭金 直接入力する 万円

毎月のご返済額

ボーナス(×年2回)

物件価格

3,090万円
※返済金額はあくまでも目安です。

こちらの物件は複数区画の分譲地・他にも販売中のマンションがあります。

八王子市弐分方町
2690万円〜3190万円
  • こちらの物件を見たお客様はこんな物件もチェックしています。
  • お気に入り物件

電話をかける(携帯・PHS可)
0120-008-442
「ホームページを見た」とお伝え下さい。

お問い合わせ番号をお伝えください
RHS-980945700

内見予約
お問合せ

お問い合わせ

お問い合わせ内容
お問合せ内容必須
【備考欄】
詳細な見学ご希望時間、ご質問、ご希望条件などがございましたらお聞かせ下さい。
(2000文字以内)
お客様情報
お名前必須
連絡先必須 メールアドレス

※ご記入いただいたメールアドレス宛てに、お問合せ内容の確認メールをお送りいたします。
※Yahoo!メールなどのフリーメールをご利用の場合、迷惑メールフォルダに入る場合があります。
 迷惑メールのフォルダ・設定等をご確認下さい。
電話番号
FAX(任意)
※ご入力いただいたお客さまの個人情報は、「個人情報の取扱いについて」に基づき適正に取り扱います。必ずお読みになり、同意の上お問い合わせください。

お気軽にお問い合わせください

0120-008-442
物件番号 RHS-980945700
※「ホームページを見た」
とお伝え下さい。