| 価格 | 4,180万円 ![]() |
||||
|---|---|---|---|---|---|
| 所在地 | 神奈川県横須賀市衣笠栄町3丁目
この地域周辺の物件を見る |
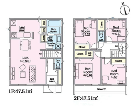
土地面積 | 137.84m² (41.7坪) | 建物面積 | 95.02u |
| 築年月 | 2026年5月築 | 間取り | 4LDK (-) | ||
| 交通 |
JR横須賀線 衣笠 京浜急行本線汐入駅 車分
京急本線 汐入 |
||||
-
電話をかける(携帯・PHS可)
0120-008-442
「ホームページを見た」とお伝え下さい。
お問い合わせ番号をお伝えください
RHS-980945531
| 特徴 |
|
|---|---|
| セールスコメント | 路地状部分面積:37.82平米 |
| 採光面 | - | 構造/階数 | 木造/地上2階建 |
|---|---|---|---|
| 建ぺい率 | 60(%) | 容積率 | 200(%) |
| 駐車場 | 有 | 現況/引渡し | 空家/即時 |
| 土地権利 | 所有権 | 私道負担面積 | - |
| 接道状況 | 接道: 東南 公道 道路幅: 6m | 用途地域 |
第一種住居地域
|
| セットバック | なし | 法令上の制限 | 第1種高度地区 敷地内一部協定地部分有 |
| 地目 | - | 地勢 | |
| 建築確認番号 | 第25KAK建確02253号 | 都市計画 | 市街化区域 |
| 取引態様 | 仲介 | ||
| 情報更新日 | 2026年05月22日 | 次回更新日 | 2026年06月05日 |
| 小学校区 | 横須賀市立城北小学校 (神奈川県横須賀市) この学区の他の物件を見る |
中学校区 | 衣笠中学校 (神奈川県横須賀市) この学区の他の物件を見る |
|---|
電話をかける(携帯・PHS可)
0120-008-442
「ホームページを見た」とお伝え下さい。
お問い合わせ番号をお伝えください
RHS-980945531
| 価格 | 万円 | ||
|---|---|---|---|
| 年利率 | % |
||
| ボーナス払い | 返済年数 | ||
| 頭金 | 直接入力する | 万円 | |

毎月のご返済額 |
ボーナス(×年2回) |
物件価格4,180万円 |
![]() |
![]() |
横須賀市衣笠栄町3丁目
3980万円〜4380万円 |
電話をかける(携帯・PHS可)
0120-008-442
「ホームページを見た」とお伝え下さい。
お問い合わせ番号をお伝えください
RHS-980945531
将来性抜群の駅徒歩5分 人気の敷地30坪以上!
夢のマイホーム2階建て 夢のマイホームは新築で!
生活施設充実、ゆとりの好環境