| 価格 | 3,280万円値下がり ![]() |
||||
|---|---|---|---|---|---|
| 所在地 | 神奈川県海老名市社家2丁目
この地域周辺の物件を見る |
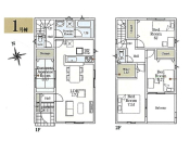
土地面積 | 101.81m² (30.8坪) | 建物面積 | 87.48u |
| 築年月 | 2025年12月築 | 間取り | 3LDK (-) | ||
| 交通 |
JR相模線 社家 徒歩14分
小田急小田原線 厚木 徒歩23分 |
||||
-
電話をかける(携帯・PHS可)
0120-008-442
「ホームページを見た」とお伝え下さい。
お問い合わせ番号をお伝えください
RHS-980946236
| 特徴 |
|
|---|---|
| セールスコメント |
| 採光面 | - | 構造/階数 | 木造/地上2階建 |
|---|---|---|---|
| 建ぺい率 | 60(%) | 容積率 | 200(%) |
| 駐車場 | 有 | 現況/引渡し | 空家/即時 |
| 土地権利 | 所有権 | 私道負担面積 | - |
| 接道状況 | 接道: 北 公道 道路幅: 4.5m | 用途地域 |
第一種住居地域
|
| セットバック | なし | 法令上の制限 | ゴミ置場持分:1/7 法22条区域 |
| 地目 | 宅地 | 地勢 | |
| 建築確認番号 | 第KBI-SGM25-10-2652号 | 都市計画 | 市街化区域 |
| 取引態様 | 仲介 | ||
| 情報更新日 | 2026年05月13日 | 次回更新日 | 2026年05月27日 |
| 小学校区 | () |
中学校区 | () |
|---|
電話をかける(携帯・PHS可)
0120-008-442
「ホームページを見た」とお伝え下さい。
お問い合わせ番号をお伝えください
RHS-980946236
| 価格 | 万円 | ||
|---|---|---|---|
| 年利率 | % |
||
| ボーナス払い | 返済年数 | ||
| 頭金 | 直接入力する | 万円 | |

毎月のご返済額 |
ボーナス(×年2回) |
物件価格3,280万円 |
![]() |
![]() |
海老名市社家2丁目
3280万円〜3780万円 |
電話をかける(携帯・PHS可)
0120-008-442
「ホームページを見た」とお伝え下さい。
お問い合わせ番号をお伝えください
RHS-980946236
毎日の通勤も苦にならない徒歩圏内 敷地面積30坪以上!
料理が楽しくなる! 四季の花に囲まれて暮らす2階建て
マイホームの夢は新築で!