横浜市都筑区東山田4丁目 新築戸建 全10棟 神奈川県横浜市都筑区東山田4丁目|7,680万円の新築一戸建て|分譲住宅や新築物件|エムイーPLUS町田

TOPページ >
物件検索 >
新築一戸建て
>
横浜市都筑区
>
横浜市営地下鉄グリーンライン
>
横浜市都筑区東山田4丁目 新築戸建 全10棟

新築一戸建て

横浜市都筑区東山田4丁目 新築戸建 全10棟
お気に入り
価格 7,680万円 ローンシミュレーション
所在地 神奈川県横浜市都筑区東山田4丁目
この地域周辺の物件を見る
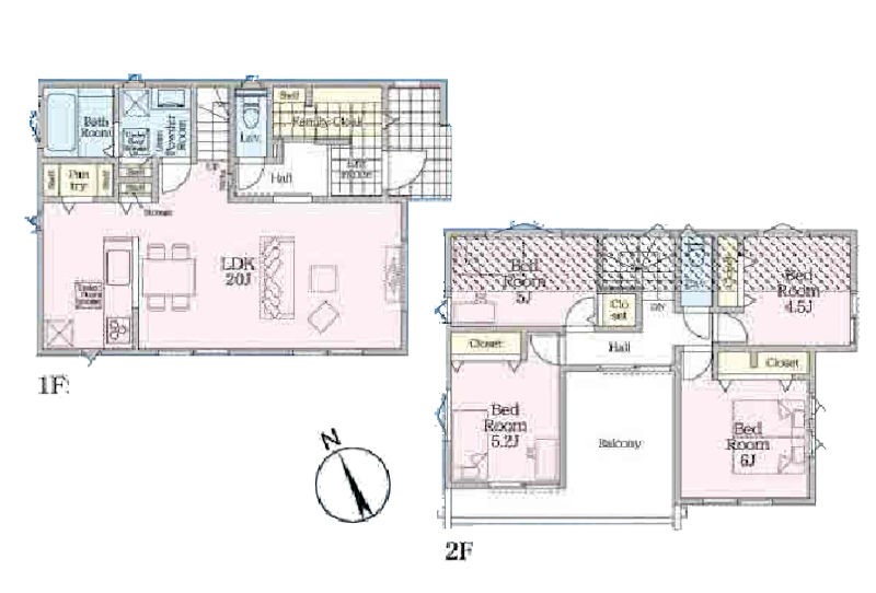
土地面積 165.9m² (50.18坪) 建物面積 101.43u
築年月 2026年6月築 間取り 4LDK (-)
交通
横浜市営地下鉄グリーンライン 東山田 徒歩20分
横浜市営地下鉄グリーンライン 北山田 徒歩20分

都市ガス=地球にやさしいエネルギーです。 毎日の通勤も苦にならない徒歩圏内
ガーデンパーティもできちゃう50.19坪 料理が楽しくなる!
低層住居専用地域!環境重視の方にオススメです。

ここがおすすめ

-


  • 現地外観写真 外観■家族みんなが笑顔で過ごせる、安心感のある住まい
  •  間取り
  • 現地外観写真 外観■暮らしを豊かにする充実した仕様設備で快適に
  • 現地外観写真 外観■この道を歩けば、毎日が少し特別になる
  •  区画図
  • 周辺環境 駅 1600m 横浜市営地下鉄グリーンライン「東山田」駅
  • 周辺環境 小学校 1200m 横浜市立東山田小学校
  • 周辺環境 中学校 660m 横浜市立東山田中学校
  • 周辺環境 幼稚園・保育園 2000m 港北幼稚園
  • 周辺環境 病院 1800m 山本記念病院
  • 周辺環境 スーパー 1300m オーケー 北山田店
お問い合わせ、資料請求、見学のお申し込みはこちらから

電話をかける(携帯・PHS可)
0120-008-442
「ホームページを見た」とお伝え下さい。

お問い合わせ番号をお伝えください
RHS-980947186

内見予約
お問合せ

セールスポイント

特徴
  • フローリング
  • システムキッチン
  • カウンターキッチン
  • 追い焚き
  • シャワートイレ
  • 浴室乾燥機
  • 床下収納
  • バルコニー
  • TVドアホン
  • 都市ガス
  • カウンターキッチン
  • カースペース2台以上
セールスコメント
 


物件概要

採光面 - 構造/階数 木造/地上2階建
建ぺい率 50(%) 容積率 80(%)
駐車場 現況/引渡し -/2026年6月下旬
土地権利 所有権 私道負担面積 -

接道状況 接道: 東 公道 道路幅: 6m 用途地域
第一種低層住居専用地域
セットバック なし 法令上の制限 第一種高度地区 宅地造成及び特定盛土等規制法 港北ニュータウン街づくり協議地区 ゴミ置き場2.00平米の持分1/11有
地目 宅地 地勢
建築確認番号 第25KAK建確01933号 都市計画 市街化区域
取引態様 仲介
情報更新日 2026年05月13日 次回更新日 2026年05月27日
※各種情報と差異がある場合は現況優先となります

学区情報

小学校区 横浜市立東山田小学校
(神奈川県横浜市都筑区)
この学区の他の物件を見る
中学校区 東山田中学校
(神奈川県横浜市都筑区)
この学区の他の物件を見る
※物件情報の学区情報について
当サイト物件情報に記載されております通学区域(学区)情報は、国土数値情報ダウンロードサービスが提供する小学校区データ【2016年度】及び中学校区データ【2016年度】を元に加工したものですので、記載情報が現在の学区域と異なる場合がございます。
国土数値情報ダウンロードサービスのWEBサイト上で記述通り、データは必ずしも正確とは言えません。また、通学区域(学区)は毎年見直しの対象となりますので、そちらを踏まえ学区情報は参考としてご活用下さい。
お問い合わせ、資料請求、見学のお申し込みはこちらから

電話をかける(携帯・PHS可)
0120-008-442
「ホームページを見た」とお伝え下さい。

お問い合わせ番号をお伝えください
RHS-980947186

内見予約
お問合せ

この物件でローンシミュレーションする

価格 万円
年利率
ボーナス払い 返済年数
頭金 直接入力する 万円

毎月のご返済額

ボーナス(×年2回)

物件価格

7,680万円
※返済金額はあくまでも目安です。

こちらの物件は複数区画の分譲地・他にも販売中のマンションがあります。

横浜市都筑区東山田4丁目
7580万円〜7680万円
  • こちらの物件を見たお客様はこんな物件もチェックしています。
  • お気に入り物件

電話をかける(携帯・PHS可)
0120-008-442
「ホームページを見た」とお伝え下さい。

お問い合わせ番号をお伝えください
RHS-980947186

内見予約
お問合せ

お問い合わせ

お問い合わせ内容
お問合せ内容必須
【備考欄】
詳細な見学ご希望時間、ご質問、ご希望条件などがございましたらお聞かせ下さい。
(2000文字以内)
お客様情報
お名前必須
連絡先必須 メールアドレス

※ご記入いただいたメールアドレス宛てに、お問合せ内容の確認メールをお送りいたします。
※Yahoo!メールなどのフリーメールをご利用の場合、迷惑メールフォルダに入る場合があります。
 迷惑メールのフォルダ・設定等をご確認下さい。
電話番号
FAX(任意)
※ご入力いただいたお客さまの個人情報は、「個人情報の取扱いについて」に基づき適正に取り扱います。必ずお読みになり、同意の上お問い合わせください。

お気軽にお問い合わせください

0120-008-442
物件番号 RHS-980947186
※「ホームページを見た」
とお伝え下さい。