相模原市南区磯部 新築戸建 全3棟 神奈川県相模原市南区磯部 |3,290万円の新築一戸建て|分譲住宅や新築物件|エムイーPLUS町田

TOPページ >
物件検索 >
新築一戸建て
>
相模原市南区
>
JR相模線
>
相模原市南区磯部 新築戸建 全3棟

新築一戸建て

相模原市南区磯部 新築戸建 全3棟
お気に入り
価格 3,290万円 ローンシミュレーション
所在地 神奈川県相模原市南区磯部
この地域周辺の物件を見る
土地面積 120.27m² (36.38坪) 建物面積 94.6u
築年月 2026年7月築 間取り 4LDK (-)
交通
JR相模線 相武台下 徒歩17分
JR相模線 下溝 徒歩23分

駅まで徒歩17分です 土地面積30坪以上!
落ち着いた住環境の代名詞・低層住居専用地域 各部屋充実・満足の収納スペース
10年保証で安心です。

ここがおすすめ

-


  • 現地外観写真 外観■まずは一度ご覧ください
  •  間取り
  • 現地外観写真 外観■暮らしを彩る充実した設備仕様が備わった住まい
  • 現地外観写真 外観■家族とのお出かけが楽しくなる環境です
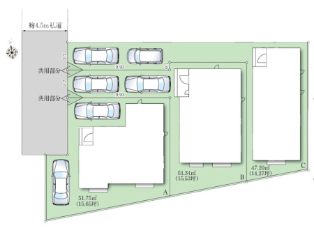
  •  区画図
  • 周辺環境 駅 1300m JR相模線「相武台下」駅
  • 周辺環境 小学校 160m 相模原市立新磯小学校
  • 周辺環境 中学校 1300m 相模原市立相陽中学校
  • 周辺環境 幼稚園・保育園 1300m 誠心相陽幼稚園
  • 周辺環境 病院 450m 磯部クリニック
  • 周辺環境 スーパー 700m たからやフレサ磯部店
お問い合わせ、資料請求、見学のお申し込みはこちらから

電話をかける(携帯・PHS可)
0120-008-442
「ホームページを見た」とお伝え下さい。

お問い合わせ番号をお伝えください
RHS-980948464

内見予約
お問合せ

セールスポイント

特徴
  • フローリング
  • バリアフリー
  • システムキッチン
  • シャンプードレッサー
  • シャワートイレ
  • 床下収納
  • バルコニー
  • TVドアホン
  • カースペース2台以上
セールスコメント
 


物件概要

採光面 - 構造/階数 木造/地上2階建
建ぺい率 50(%) 容積率 80(%)
駐車場 現況/引渡し -/2026年7月下旬
土地権利 所有権 私道負担面積 -

接道状況 接道: 西 私道 道路幅: 4.5m 用途地域
第一種低層住居専用地域
セットバック なし 法令上の制限 22条区域 私道持分117平米×各1/6有
地目 宅地 地勢
建築確認番号 第HPA-26-03631-1号 都市計画 市街化区域
取引態様 仲介
情報更新日 2026年05月13日 次回更新日 2026年05月27日
※各種情報と差異がある場合は現況優先となります

学区情報

小学校区
()
中学校区
()
※物件情報の学区情報について
当サイト物件情報に記載されております通学区域(学区)情報は、国土数値情報ダウンロードサービスが提供する小学校区データ【2016年度】及び中学校区データ【2016年度】を元に加工したものですので、記載情報が現在の学区域と異なる場合がございます。
国土数値情報ダウンロードサービスのWEBサイト上で記述通り、データは必ずしも正確とは言えません。また、通学区域(学区)は毎年見直しの対象となりますので、そちらを踏まえ学区情報は参考としてご活用下さい。
お問い合わせ、資料請求、見学のお申し込みはこちらから

電話をかける(携帯・PHS可)
0120-008-442
「ホームページを見た」とお伝え下さい。

お問い合わせ番号をお伝えください
RHS-980948464

内見予約
お問合せ

この物件でローンシミュレーションする

価格 万円
年利率
ボーナス払い 返済年数
頭金 直接入力する 万円

毎月のご返済額

ボーナス(×年2回)

物件価格

3,290万円
※返済金額はあくまでも目安です。

こちらの物件は複数区画の分譲地・他にも販売中のマンションがあります。

相模原市南区磯部
3090万円〜3490万円

電話をかける(携帯・PHS可)
0120-008-442
「ホームページを見た」とお伝え下さい。

お問い合わせ番号をお伝えください
RHS-980948464

内見予約
お問合せ

お問い合わせ

お問い合わせ内容
お問合せ内容必須
【備考欄】
詳細な見学ご希望時間、ご質問、ご希望条件などがございましたらお聞かせ下さい。
(2000文字以内)
お客様情報
お名前必須
連絡先必須 メールアドレス

※ご記入いただいたメールアドレス宛てに、お問合せ内容の確認メールをお送りいたします。
※Yahoo!メールなどのフリーメールをご利用の場合、迷惑メールフォルダに入る場合があります。
 迷惑メールのフォルダ・設定等をご確認下さい。
電話番号
FAX(任意)
※ご入力いただいたお客さまの個人情報は、「個人情報の取扱いについて」に基づき適正に取り扱います。必ずお読みになり、同意の上お問い合わせください。

お気軽にお問い合わせください

0120-008-442
物件番号 RHS-980948464
※「ホームページを見た」
とお伝え下さい。