| 価格 | 2,850万円値下がり ![]() |
||||
|---|---|---|---|---|---|
| 所在地 | 神奈川県綾瀬市深谷南1丁目
この地域周辺の物件を見る |
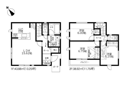
土地面積 | 71.13m² (21.52坪) | 建物面積 | 68.87u |
| 築年月 | 2025年7月築 | 間取り | 3LDK (-) | ||
| 交通 |
小田急江ノ島線 長後 江ノ島線高座渋谷駅 車分
小田急江ノ島線 高座渋谷 |
||||
南道路、南向きバルコニーで陽当たり良好 暮らしやすい間取り 省エネラベル 充実の設備仕様 居室以外の照明器具、網戸全窓標準
電話をかける(携帯・PHS可)
0120-008-442
「ホームページを見た」とお伝え下さい。
お問い合わせ番号をお伝えください
RHS-980904164
| 特徴 |
|
|---|---|
| セールスコメント | 綾瀬市立綾瀬小学校 1300m 綾瀬市立綾瀬中学校 210m |
| 採光面 | - | 構造/階数 | 木造/地上2階建 |
|---|---|---|---|
| 建ぺい率 | 60(%) | 容積率 | 16(%) |
| 駐車場 | 有 | 現況/引渡し | 空家/即時 |
| 土地権利 | 所有権 | 私道負担面積 | - |
| 接道状況 | 接道: 南 公道 道路幅: 4m | 用途地域 |
第一種住居地域
|
| セットバック | なし | 法令上の制限 | 準防火地域 第一種高度地区 一部セットバック部分(約2.36平米)持分有り(法42条1項1号復元部分)分筆予定無 1F車庫面積8.48平米 |
| 地目 | 宅地 | 地勢 | |
| 建築確認番号 | 第KBI-SGM24-10-4691号 | 都市計画 | 市街化区域 |
| 取引態様 | 仲介 | ||
| 情報更新日 | 2026年04月25日 | 次回更新日 | 2026年05月09日 |
| 小学校区 | () |
中学校区 | () |
|---|
電話をかける(携帯・PHS可)
0120-008-442
「ホームページを見た」とお伝え下さい。
お問い合わせ番号をお伝えください
RHS-980904164
| 価格 | 万円 | ||
|---|---|---|---|
| 年利率 | % |
||
| ボーナス払い | 返済年数 | ||
| 頭金 | 直接入力する | 万円 | |

毎月のご返済額 |
ボーナス(×年2回) |
物件価格2,850万円 |
電話をかける(携帯・PHS可)
0120-008-442
「ホームページを見た」とお伝え下さい。
お問い合わせ番号をお伝えください
RHS-980904164
一生価値ある南道路です。 四季の花に囲まれて暮らす2階建て
バス停が近く移動便利です。 マイホームの夢は新築で!
閑静な住宅街